-
126.6 m2
-
1 emplacement
Description du bien
INFOS & VISITES - Yves Perugini 0455/14.90.52 -
Située sur l’axe le plus fréquenté de Herve (N3), cette surface polyvalente bénéficie d’une visibilité exceptionnelle et d’un emplacement stratégique pour développer votre activité.
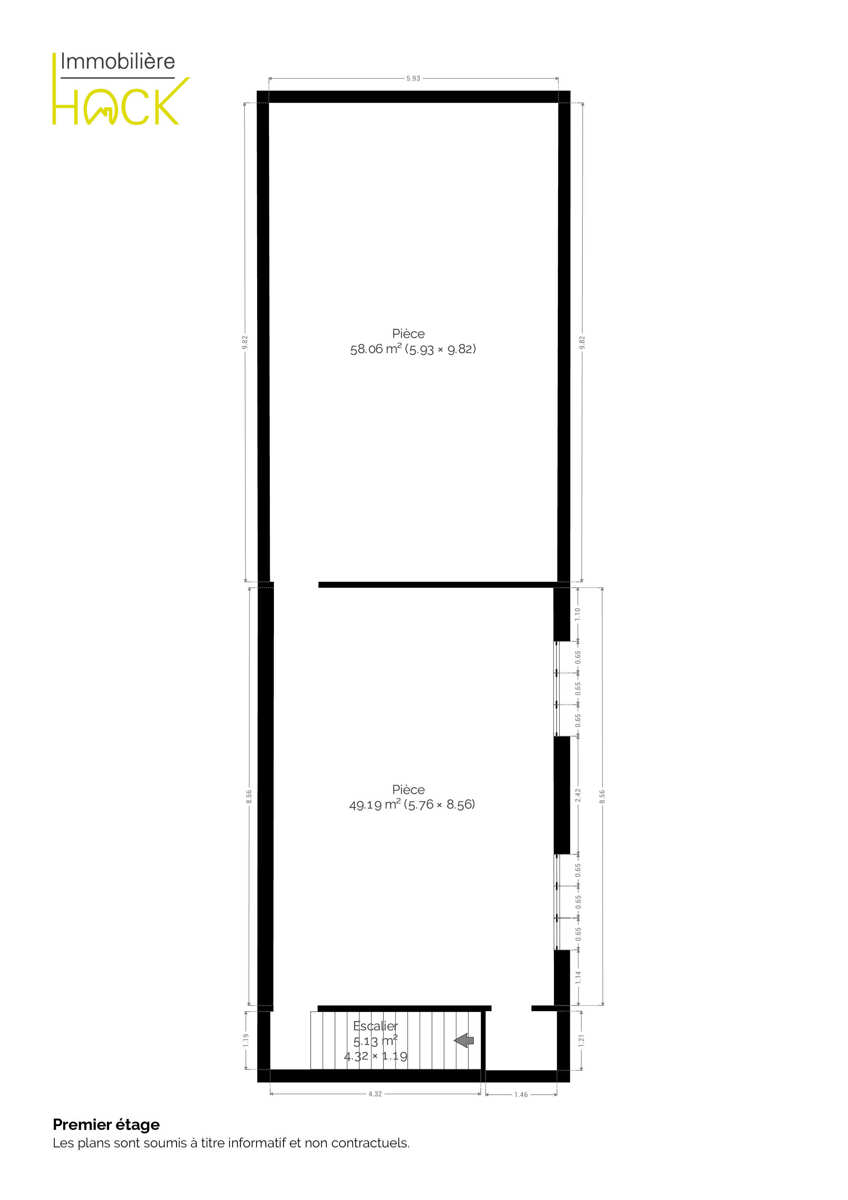
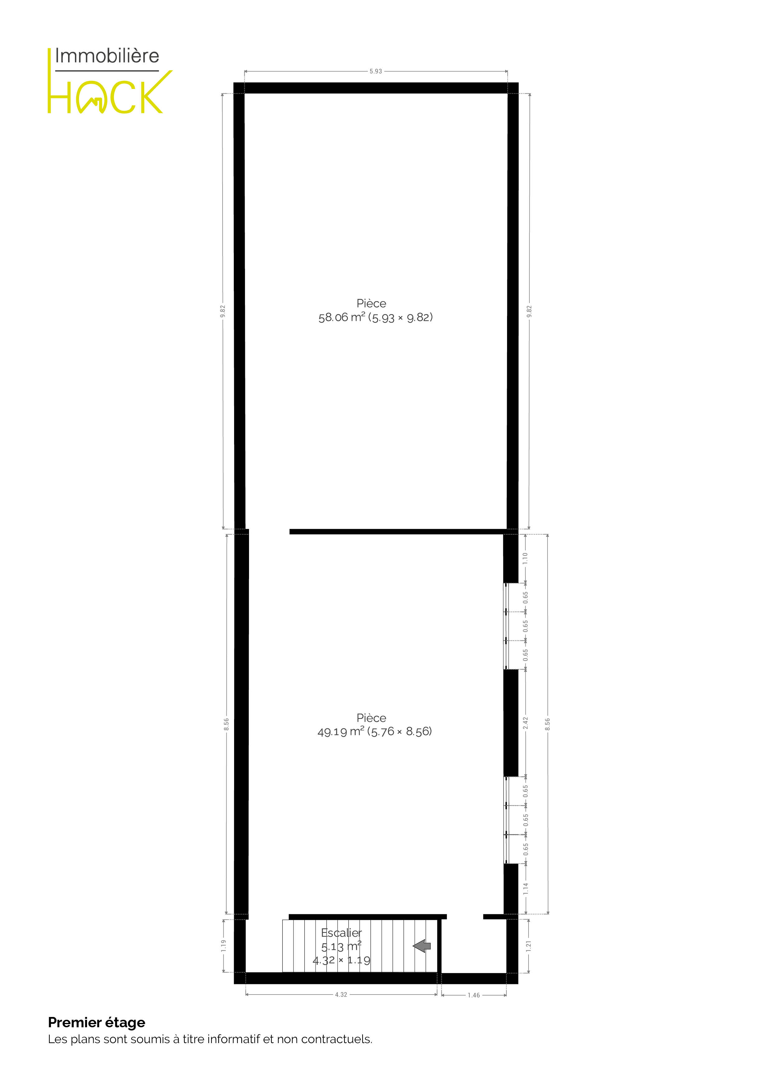
Le bien, offrant une superficie totale de 137 m2, se compose au rez-de-chaussée d’un sas d’entrée donnant accès à un espace showroom et une zone de stockage. L’étage propose deux grands volumes polyvalents de 107,25 m², idéaux pour l’aménagement de bureaux, d’une salle de réunion ou d’un espace de travail collaboratif. Un parking privatif complète l’ensemble.
Des travaux d’aménagement peuvent être réalisés selon vos besoins, afin d’adapter parfaitement les lieux à votre projet professionnel.
Provisions de charges : à définir entre les parties
Loyer: faire offre à partir de 750€/mois + précompte immobilier
Documents téléchargeables
Emplacement du bien
| ID du bien | 6839149 |
| Titre du bien | Y - Surface commerciale et de bureaux à louer |
| Référence | 2025/113 |
| Catégorie | Commerce |
| Sous-catégorie | Rez commercial |
| Transaction | À louer |
| Status de la transaction | À louer |
| Prix | À partir de 750€ |
| Conformité électricité | non |
| Totale | 126.6 m2 |
À partir de750 €
Yves PeruginiAgent immobilier
Ce bien vous intéresse ? Contactez-moi pour plus d'informations. Je vous répondrai rapidement pour fixer une visite ou pour répondre à vos questions.
Biens similairesDécouvrez d'autres bien en location
-
Nouveau-
73 m2
WelkenraedtBureaux
650 €
-
-
Nouveau-
73 m2
WelkenraedtCommerce individuel
650 €
-
-
Nouveau-
159 m2
-
1
AubelEntrepôt
800 €
-
-
Nouveau-
155 m2
-
1
AubelEntrepôt
800 €
-
-
Nouveau-
3
-
2
-
136 m2
-
1
BaelenMaison
1.100 €
-
-
À louer-
60 m2
-
1
AubelBureaux
600 €
-
-
À louer-
2
-
1
-
96 m2
-
1
PlombièresAppartement
750 €
-
-
À louer-
2
-
1
-
78 m2
-
1
LiègeAppartement
980 €
-
-
À louer-
1
-
1
-
63 m2
BaelenRez-de-ch. avec jardin
750 €
-
-
À louer-
3
-
1
-
80 m2
-
1
BaelenAppartement
790 €
-
-
À louer-
120 m2
-
1
Liège RocourtBureaux
990 €
-
-
À louer-
14 m2
-
1
LiègeBureaux
450 €
-
-
À louer-
23 m2
-
1
Liège RocourtBureaux
450 €
-
-
À louer-
14 m2
-
1
Liège RocourtBureaux
300 €
-
-
À louer-
73 m2
WelkenraedtCommerce individuel
650 €
-
-
À louer-
163 m2
-
1
Liège RocourtRez commercial
1.500 €
-
-
À louer-
393 m2
-
1
HerveCommerce individuel
2.500 €
-
-
À louer-
1
-
1
-
34 m2
LiègeStudio
680 €
-
-
À louer-
61 m2
-
1
WelkenraedtRez commercial
1.400 €
-
-
À louer-
94 m2
WelkenraedtUsage multiple
990 €
-
-
À louer-
109 m2
-
1
HerveRez commercial
3.000 €
-
-
À louer-
44 m2
-
1
HerveCommerce individuel
1.500 €
-
-
À louer-
65 m2
-
1
HerveCommerce individuel
1.500 €
-
-
À louer-
3
-
1
-
150 m2
-
1
PlombièresAppartement
850 €
-
-
À louer-
608 m2
LiègeParking intérieur
1.500 €
-
-
À louer-
134 m2
-
1
WelkenraedtCommerce individuel
1.200 €
-
-
À louer-
170 m2
-
1
WelkenraedtCommerce individuel
1.450 €
-