-
72.7 m2
Description du bien
INFOS & VISITES - Adèle Ramelot 0489 85 46 40 -
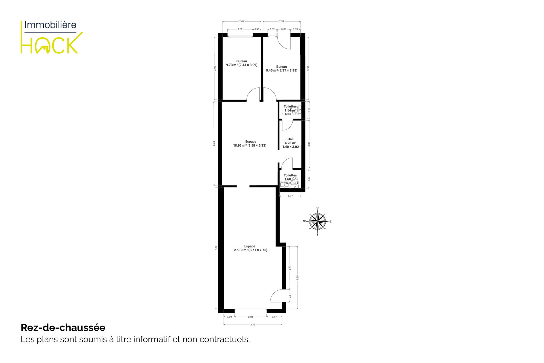
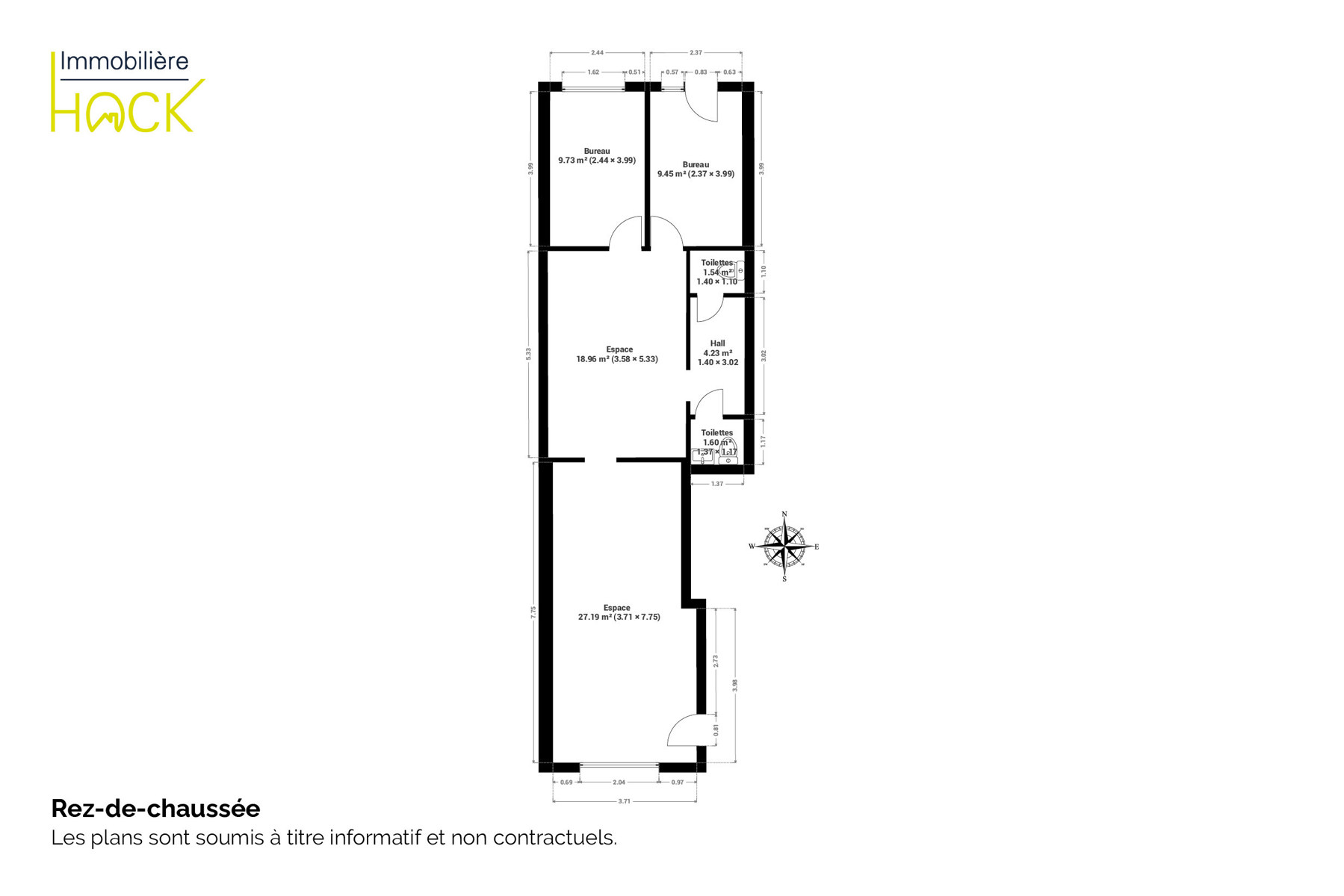
Située dans une rue commerçante proche du centre de Welkenraedt, surface commerciale d'une superficie de 74 m² avec une cave.
La surface se compose d’un espace principal de 28 m² bénéficiant d’une grande vitrine offrant une belle visibilité ainsi que d’une pièce de 17 m² pouvant être aménagée selon les besoins de votre activité, de deux WC, deux pièces polyvalentes et d'une cave.
DV PVC - Prises en suffisance - Volets manuels
Loyer: 650€/mois (hors élect., eau)
Située dans une rue commerçante proche du centre de Welkenraedt, surface commerciale d'une superficie de 74 m² avec une cave.
La surface se compose d’un espace principal de 28 m² bénéficiant d’une grande vitrine offrant une belle visibilité ainsi que d’une pièce de 17 m² pouvant être aménagée selon les besoins de votre activité, de deux WC, deux pièces polyvalentes et d'une cave.
DV PVC - Prises en suffisance - Volets manuels
Loyer: 650€/mois (hors élect., eau)
Documents téléchargeables
Emplacement du bien
| ID du bien | 7571230 |
| Titre du bien | AD - Commerce individuel |
| Référence | 2026/29 |
| Catégorie | Bureau |
| Sous-catégorie | Bureaux |
| Transaction | À louer |
| Status de la transaction | À louer |
| Prix | 650€ |
| Type de chauffage | electrique |
| Totale | 72.7 m2 |
650 €
Adèle RamelotAgent immobilier
Ce bien vous intéresse ? Contactez-moi pour plus d'informations. Je vous répondrai rapidement pour fixer une visite ou pour répondre à vos questions.
Biens similairesDécouvrez d'autres bien en location
-
Nouveau-
73 m2
WelkenraedtCommerce individuel
650 €
-
-
Nouveau-
159 m2
-
1
AubelEntrepôt
800 €
-
-
Nouveau-
155 m2
-
1
AubelEntrepôt
800 €
-
-
Nouveau-
3
-
2
-
136 m2
-
1
BaelenMaison
1.100 €
-
-
À louer-
60 m2
-
1
AubelBureaux
600 €
-
-
À louer-
2
-
1
-
96 m2
-
1
PlombièresAppartement
750 €
-
-
À louer-
2
-
1
-
78 m2
-
1
LiègeAppartement
980 €
-
-
À louer-
1
-
1
-
63 m2
BaelenRez-de-ch. avec jardin
750 €
-
-
À louer-
3
-
1
-
80 m2
-
1
BaelenAppartement
790 €
-
-
À louer-
120 m2
-
1
Liège RocourtBureaux
990 €
-
-
À louer-
14 m2
-
1
LiègeBureaux
450 €
-
-
À louer-
23 m2
-
1
Liège RocourtBureaux
450 €
-
-
À louer-
14 m2
-
1
Liège RocourtBureaux
300 €
-
-
À louer-
73 m2
WelkenraedtCommerce individuel
650 €
-
-
À louer-
163 m2
-
1
Liège RocourtRez commercial
1.500 €
-
-
À louer-
393 m2
-
1
HerveCommerce individuel
2.500 €
-
-
À louer-
1
-
1
-
34 m2
LiègeStudio
680 €
-
-
À louer-
61 m2
-
1
WelkenraedtRez commercial
1.400 €
-
-
À louer-
94 m2
WelkenraedtUsage multiple
990 €
-
-
À louer-
109 m2
-
1
HerveRez commercial
3.000 €
-
-
À louer-
44 m2
-
1
HerveCommerce individuel
1.500 €
-
-
À louer-
65 m2
-
1
HerveCommerce individuel
1.500 €
-
-
À louer-
3
-
1
-
150 m2
-
1
PlombièresAppartement
850 €
-
-
À louer-
608 m2
LiègeParking intérieur
1.500 €
-
-
À louer-
134 m2
-
1
WelkenraedtCommerce individuel
1.200 €
-
-
À louer-
170 m2
-
1
WelkenraedtCommerce individuel
1.450 €
-
-
À louer-
127 m2
-
1
HerveRez commercial
À partir de750 €
-