-
240.53 m2
-
4 chambres
-
1 salle de bain
Description du bien
INFOS & VISITES - Gauthier Lassoie 0472 75 28 87 -
Située dans une rue calme proche du centre de Welkenraedt, maison 4 façades, 4 chambres avec garage, terrasse et jardin à rénover.
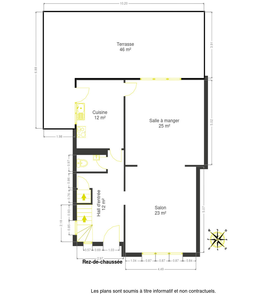
Ce bien se compose au rez-de-chaussée d'un vaste hall d'entrée, d'un lumineux et spacieux séjour ainsi que d'une cuisine équipée. A l'étage, un hall de nuit dessert 3 chambres, une salle de bains et un grenier (poss. chambre). Un jardin avec terrasse (Sud-Est) complètent l'ensemble.
La maison est vendue avec un terrain d'approximativement 700m².
DV PVC (récent) - Electricité non conforme - CC gaz (récent) - Toiture en ordre
RC: 1.497€
PEB: E (N°20231024005688)
Documents téléchargeables
Emplacement du bien
| ID du bien | 5983070 |
| Titre du bien | Welkenraedt - Maison |
| Référence | 5553921 |
| Catégorie | Maison |
| Sous-catégorie | Maison |
| Transaction | À vendre |
| Status de la transaction | Vendu |
| Disponibilité | À rénover |
| Cadastre | 1497 € |
| Orientation du bâtiment | nord-est |
| État du bâtiment | À rénover |
| Classe énergétique | E |
| Valeur énergétique | 407kWh/m²/an |
| Type de chauffage | gaz (chau. centr.) |
| Conformité électricité | oui, non conforme |
| Totale | 240.53 m2 |
| Terrain | 700 m2 |
| Séjour | 22.75 m2 |
| Salle à manger | 25.02 m2 |
| Cuisine | 11.97 m2 |
| Chambre 1 | 18.94 m2 |
| Chambre 2 | 18.33 m2 |
| Chambre 3 | 10.01 m2 |
Gary HockGérant de l'agence
Ce bien vous intéresse ? Contactez-moi pour plus d'informations. Je vous répondrai rapidement pour fixer une visite ou pour répondre à vos questions.
Visite virtuelle