-
138.67 m2
-
1 emplacement
Description du bien
INFOS & VISITES - Emma Petit - 0455 14 23 82
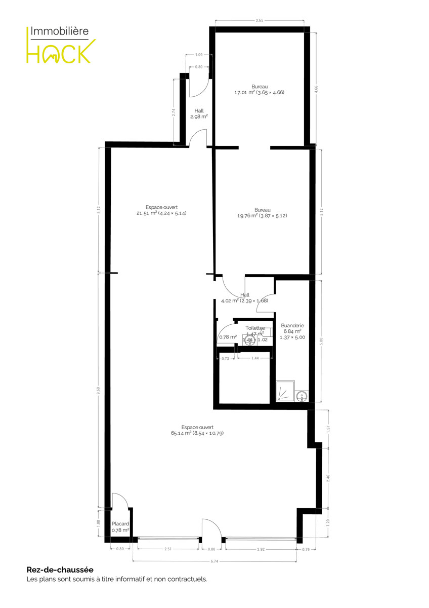
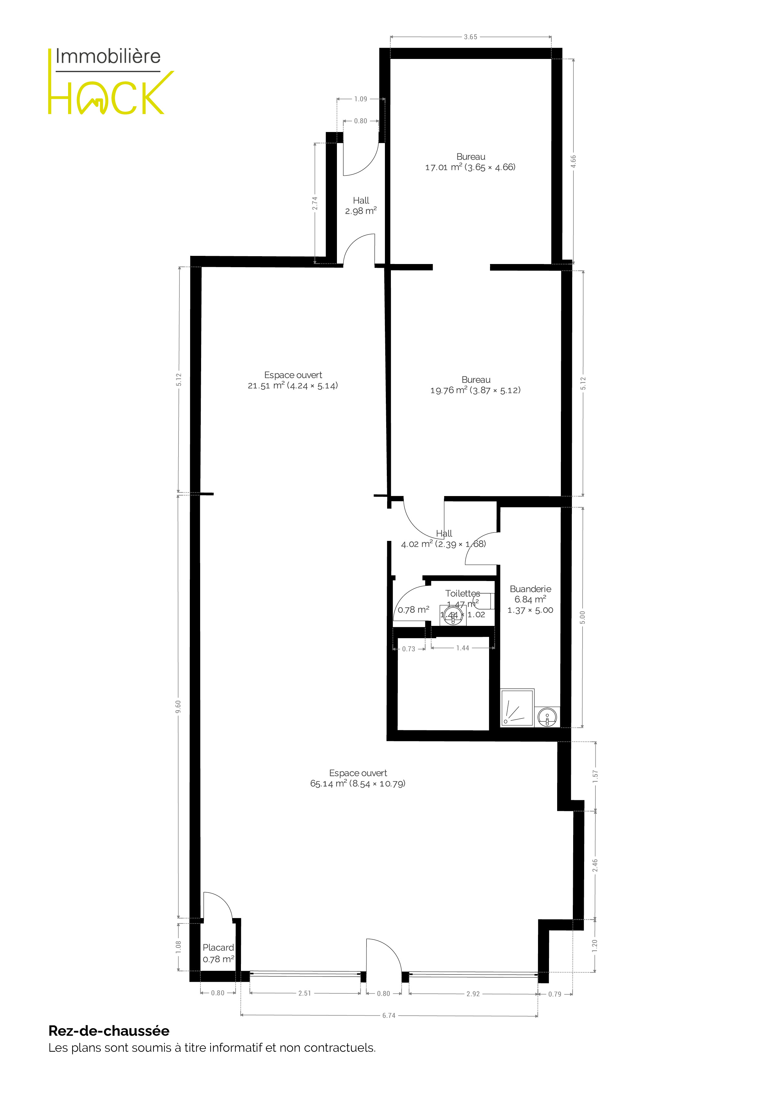
Idéalement située sur l’axe très fréquenté de l’Avenue des Martyrs à Fléron, surface commerciale de 138,67 m² avec une cave et deux emplacements de parking.
Accessible par une entrée indépendante, le bien se compose de deux grands espaces ouverts et lumineux, ainsi que d’un hall menant à deux bureaux, une buanderie et un WC. Une cave et deux emplacements de parking complètent l'ensemble.
Forte visibilité – Pompe à chaleur (air/air) – Compteurs séparés (eau/électricité)
Loyer : 2 200 €/mois
Charges précompte : à charge du locataire (à définir entre les parties)
Idéalement située sur l’axe très fréquenté de l’Avenue des Martyrs à Fléron, surface commerciale de 138,67 m² avec une cave et deux emplacements de parking.
Accessible par une entrée indépendante, le bien se compose de deux grands espaces ouverts et lumineux, ainsi que d’un hall menant à deux bureaux, une buanderie et un WC. Une cave et deux emplacements de parking complètent l'ensemble.
Forte visibilité – Pompe à chaleur (air/air) – Compteurs séparés (eau/électricité)
Loyer : 2 200 €/mois
Charges précompte : à charge du locataire (à définir entre les parties)
Documents téléchargeables
Emplacement du bien
| ID du bien | 7277860 |
| Titre du bien | E - Surface commercial avec une cave et 2 emplacments de parking |
| Référence | 2025/218 |
| Catégorie | Commerce |
| Sous-catégorie | Rez commercial |
| Transaction | À louer |
| Status de la transaction | À louer |
| Prix | 2200€ |
| Type de chauffage | pompe à chaleur |
| Totale | 138.67 m2 |
| Cuisine | 6.84 m2 |
2.200 €
Emma PetitAgent immobilier
Ce bien vous intéresse ? Contactez-moi pour plus d'informations. Je vous répondrai rapidement pour fixer une visite ou pour répondre à vos questions.
Biens similairesDécouvrez d'autres bien en location
-
Nouveau-
94 m2
WelkenraedtUsage multiple
990 €
-
-
Nouveau-
109 m2
-
1
HerveRez commercial
3.000 €
-
-
Nouveau-
44 m2
-
1
HerveCommerce individuel
1.500 €
-
-
Nouveau-
65 m2
-
1
HerveCommerce individuel
1.500 €
-
-
Nouveau-
3
-
1
-
151 m2
WelkenraedtDuplex
860 €
-
-
Nouveau-
4
-
2
-
161 m2
-
1
WelkenraedtMaison
1.050 €
-
-
À louer-
5
-
1
-
560 m2
-
1
Welkenraedt Henri-ChapelleMaison
1.800 €
-
-
À louer-
1
-
1
-
64 m2
BaelenAppartement
500 €
-
-
À louer-
19 m2
-
1
Retinne Bureaux
150 €
-
-
À louer-
90 m2
-
1
HerveBureaux
650 €
-
-
À louer-
90 m2
-
1
HerveRez commercial
650 €
-
-
À louer-
3
-
1
-
150 m2
-
1
PlombièresAppartement
850 €
-
-
À louer-
608 m2
LiègeParking intérieur
1.500 €
-
-
À louer-
14 m2
-
1
Liège RocourtBureaux
300 €
-
-
À louer-
120 m2
-
1
Liège RocourtBureaux
990 €
-
-
À louer-
74 m2
HerstalRez commercial
790 €
-
-
À louer-
62 m2
-
1
Chaudfontaine EmbourgRez commercial
1.500 €
-
-
À louer-
134 m2
-
1
WelkenraedtCommerce individuel
1.200 €
-
-
À louer-
170 m2
-
1
WelkenraedtCommerce individuel
1.450 €
-
-
À louer-
127 m2
-
1
HerveRez commercial
À partir de750 €
-