-
64.13 m2
Description du bien
INFOS & VISITES - Yves Perugini 0455 14 90 52 -
Situé en plein centre de Verviers dans une rue calme, mélangeant modernité et architecture ancienne, superbe espace professionnel de 65m² avec terrasse !
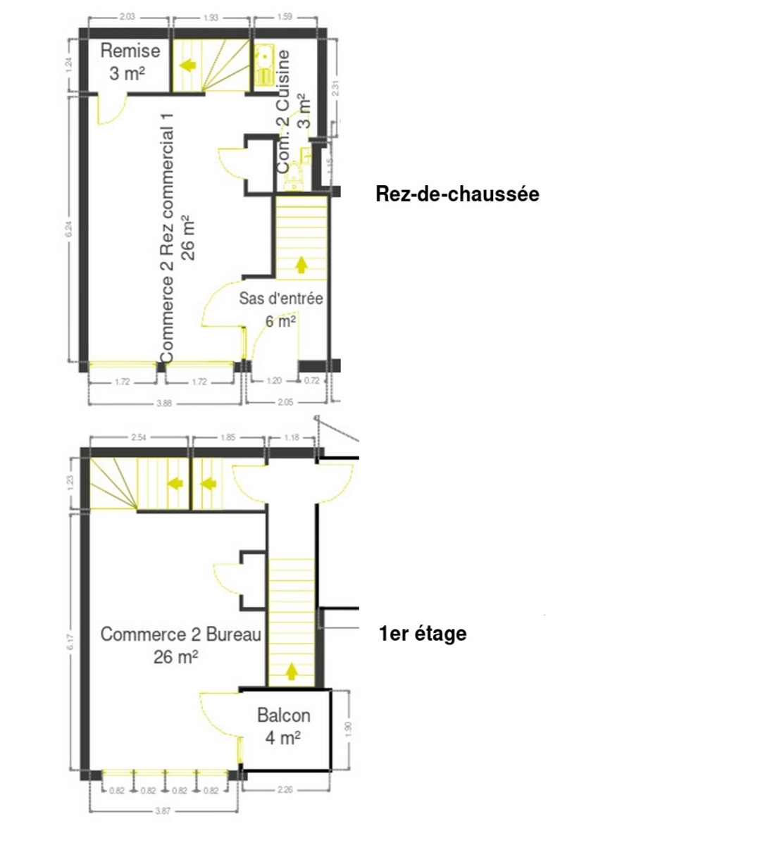
Le local commercial "duplex" se situe au rez-de-chaussée d'un bâtiment emblématique de Verviers, servant autrefois de résidence au prince-évêque de Liège et entièrement rénové en 2021. Accessible grâce à son entrée indépendante, celui-ci se compose au rez-de-chaussée d'une première surface de 26m² avec vitrines, d'une cuisine, d'un wc et d'une remise. L'étage se compose quant à lui d'un second espace de 25m² ainsi que d'une terrasse. Idéal pour une profession libérale !
CC gaz (Chaud. Individuelle) - DV Alu - Electricité conforme - Toiture neuve (Ardoises) - Vidéophone - Compteurs séparés - Cachet de l'ancien
Vente sous régime TVA - Possibilité d'acheter la société possédant le bâtiment.
Situé en plein centre de Verviers dans une rue calme, mélangeant modernité et architecture ancienne, superbe espace professionnel de 65m² avec terrasse !
Le local commercial "duplex" se situe au rez-de-chaussée d'un bâtiment emblématique de Verviers, servant autrefois de résidence au prince-évêque de Liège et entièrement rénové en 2021. Accessible grâce à son entrée indépendante, celui-ci se compose au rez-de-chaussée d'une première surface de 26m² avec vitrines, d'une cuisine, d'un wc et d'une remise. L'étage se compose quant à lui d'un second espace de 25m² ainsi que d'une terrasse. Idéal pour une profession libérale !
CC gaz (Chaud. Individuelle) - DV Alu - Electricité conforme - Toiture neuve (Ardoises) - Vidéophone - Compteurs séparés - Cachet de l'ancien
Vente sous régime TVA - Possibilité d'acheter la société possédant le bâtiment.
Documents téléchargeables
Emplacement du bien
| ID du bien | 6888301 |
| Titre du bien | Verviers - Maison du Prince |
| Référence | 2023/73 |
| Catégorie | Commerce |
| Sous-catégorie | Commerce individuel |
| Transaction | À vendre |
| Status de la transaction | À vendre |
| Prix | 125000€ |
| Disponibilité | Neuf |
| Date de construction | 2021 |
| État du bâtiment | Neuf |
| Type de chauffage | gaz (chau. centr.) |
| Conformité électricité | oui, conforme |
| Totale | 64.13 m2 |
| Cuisine | 2.97 m2 |
125.000 €
Yves PeruginiAgent immobilier
Ce bien vous intéresse ? Contactez-moi pour plus d'informations. Je vous répondrai rapidement pour fixer une visite ou pour répondre à vos questions.