-
179.71 m2
-
4 chambres
-
1 salle de bain
Description du bien
INFOS & VISITES - Yves Perugini 0475 79 35 24 -
Située entre l’axe autoroutier E42 et le centre d’Amay, maison trois chambres (poss.4) avec garage, terrasse et jardin.
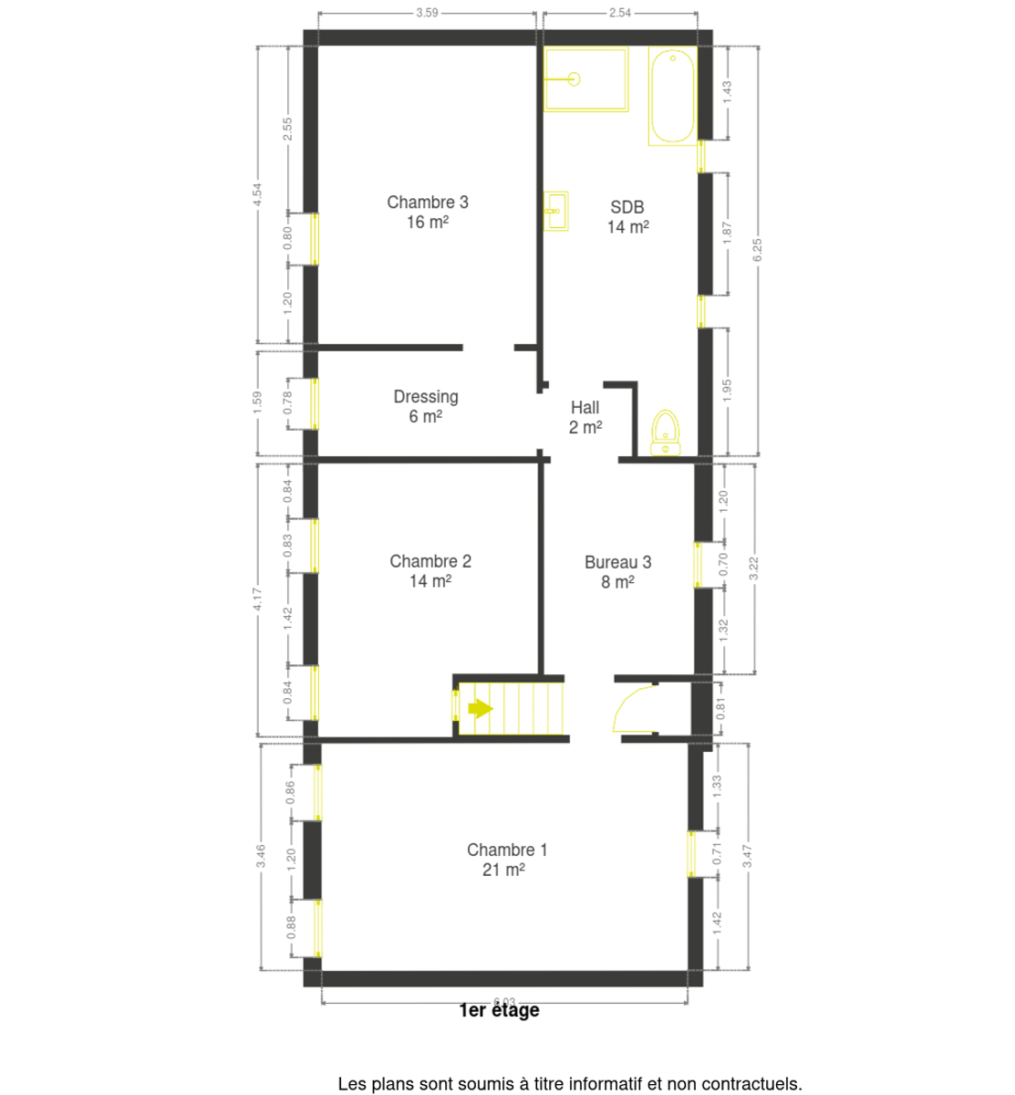
Ce bien se compose au rez-de-chaussée d’un hall d’entrée donnant accès à un lumineux séjour, d'une cuisine ainsi que d'une spacieuse annexe à rénover, idéale pour une profession libérale (+- 33 m2). L’étage se compose d’un palier desservant trois grandes chambres, d’un dressing, d’une spacieuse salle de bains avec douche, baignoire et WC ainsi que d'un bureau. Une terrasse, un garage et un jardin exposé plein sud complètent l’ensemble.
Ce bien offre une situation idéale pour une profession libérale avec possibilité d'un accès indépendant !
CC Gaz – DV PVC - Electricité conforme à l'acte.
RC: 337 € (Poss. frais réduits)
PEB G (n° 20230418026863- 565 kwH/m2.an- E total : 81563 kwh/an)
Documents téléchargeables
Emplacement du bien
| ID du bien | 5624203 |
| Titre du bien | Amay - Maison 3 chambres |
| Référence | 2023/72 |
| Catégorie | Maison |
| Sous-catégorie | Maison |
| Transaction | À vendre |
| Status de la transaction | Vendu |
| Cadastre | 337 € |
| Date de construction | 1875 |
| Orientation du bâtiment | nord |
| Classe énergétique | G |
| Valeur énergétique | 565kWh/m²/an |
| Type de chauffage | gaz |
| Conformité électricité | oui, conforme |
| Totale | 179.71 m2 |
| Terrain | 476 m2 |
| Jardin | 381 m2 |
| Séjour | 20.41 m2 |
| Cuisine | 18.5 m2 |
| Chambre 1 | 20.88 m2 |
| Chambre 2 | 16.29 m2 |
| Chambre 3 | 13.69 m2 |
| Chambre 4 | 7.93 m2 |
| Terrasse | 38 m2 |
Yves PeruginiAgent immobilier
Ce bien vous intéresse ? Contactez-moi pour plus d'informations. Je vous répondrai rapidement pour fixer une visite ou pour répondre à vos questions.
Visite virtuelle