-
Photo de l'album -
Photo de l'album -
Photo de l'album -
Photo de l'album -
Photo de l'album -
Photo de l'album -
Photo de l'album -
Photo de l'album -
Photo de l'album -
Photo de l'album -
Photo de l'album -
Photo de l'album -
Photo de l'album -
Photo de l'album -
Photo de l'album -
Photo de l'album -
Photo de l'album -
Photo de l'album -
Photo de l'album
-
100 m2
-
2 chambres
-
1 salle de bain
Description du bien
INFOS & VISITES - Maurine Depresseux 0455/14.78.01 -
Située dans une rue calme dans le centre du village de Lincé, maison 2 chambres avec cour extérieure.
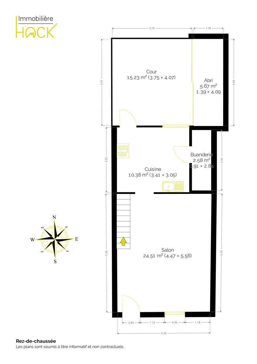
Ce bien se compose au rez-de-chaussée d’un séjour ouvert sur la cuisine et d'une buanderie. Au premier étage, un palier dessert une salle de bains et une chambre. Le deuxième étage offre une spacieuse chambre. Une cour extérieure complète l'ensemble.
DV PVC (2008) - CC mazout - Poêle à bois - Electricité conforme (--> 2038).
RC: 270€
PEB: B (n°20250513020480 - 159kwH/m2.an - E total : 16.621 kwh/an)
Située dans une rue calme dans le centre du village de Lincé, maison 2 chambres avec cour extérieure.
Ce bien se compose au rez-de-chaussée d’un séjour ouvert sur la cuisine et d'une buanderie. Au premier étage, un palier dessert une salle de bains et une chambre. Le deuxième étage offre une spacieuse chambre. Une cour extérieure complète l'ensemble.
DV PVC (2008) - CC mazout - Poêle à bois - Electricité conforme (--> 2038).
RC: 270€
PEB: B (n°20250513020480 - 159kwH/m2.an - E total : 16.621 kwh/an)
Documents téléchargeables
Emplacement du bien
| ID du bien | 6786835 |
| Titre du bien | M - Maison 2 chambres avec cour |
| Référence | 2025/73 |
| Catégorie | Maison |
| Sous-catégorie | Maison |
| Transaction | À vendre |
| Status de la transaction | Vendu |
| Cadastre | 270 € |
| Orientation du bâtiment | nord |
| Classe énergétique | B |
| Valeur énergétique | 159kWh/m²/an |
| Type de chauffage | mazout (chauf. centr.) |
| Conformité électricité | oui, conforme |
| Totale | 100 m2 |
| Terrain | 93 m2 |
| Séjour | 24.51 m2 |
| Cuisine | 10.38 m2 |
| Chambre 1 | 16.78 m2 |
| Chambre 2 | 20.82 m2 |
| Terrasse | 15.23 m2 |
Maurine DepresseuxAgent immobilier
Ce bien vous intéresse ? Contactez-moi pour plus d'informations. Je vous répondrai rapidement pour fixer une visite ou pour répondre à vos questions.
Visite virtuelle