-
162 m2
-
3 chambres
-
1 salle de bain
Description du bien
INFOS & VISITES - Gauthier Lassoie 0472 75 28 87 -
Située au calme proche du centre de Montzen, maison 3 chambres avec grand garage, jardin et terrasse.
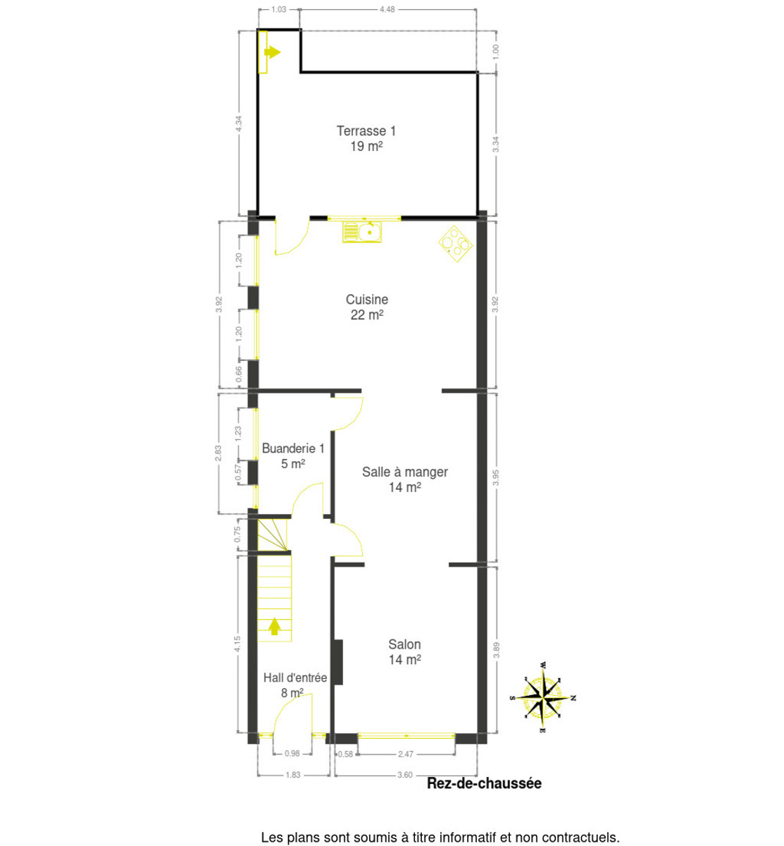
Le bien se compose au rez-de-chaussée d'un hall d'entrée, d'un séjour avec cuisine ouverte et équipée donnant accès à la terrasse couverte ainsi que d'une buanderie.
A l'étage, un hall de nuit dessert trois chambres et une salle de bains. Des caves, un grand garage ainsi qu'un jardin avec terrasse et accès latéral orienté sud-ouest complètent l'ensemble. Possibilité profession libérale !
CC Mazout - DV PVC - Poêle à pellets - Electricité non conforme
RC: 699€ (Poss. frais réduits)
PEB: D (N°2024314018928 - 356 kwH/m2.an - E total : 46 013 kwh/an)
Située au calme proche du centre de Montzen, maison 3 chambres avec grand garage, jardin et terrasse.
Le bien se compose au rez-de-chaussée d'un hall d'entrée, d'un séjour avec cuisine ouverte et équipée donnant accès à la terrasse couverte ainsi que d'une buanderie.
A l'étage, un hall de nuit dessert trois chambres et une salle de bains. Des caves, un grand garage ainsi qu'un jardin avec terrasse et accès latéral orienté sud-ouest complètent l'ensemble. Possibilité profession libérale !
CC Mazout - DV PVC - Poêle à pellets - Electricité non conforme
RC: 699€ (Poss. frais réduits)
PEB: D (N°2024314018928 - 356 kwH/m2.an - E total : 46 013 kwh/an)
Documents téléchargeables
Emplacement du bien
| ID du bien | 5885232 |
| Titre du bien | Plombière - maison |
| Référence | 2024/19 |
| Catégorie | Maison |
| Sous-catégorie | Maison |
| Transaction | À vendre |
| Status de la transaction | Vendu |
| Cadastre | 699 € |
| Orientation du bâtiment | nord-est |
| Classe énergétique | E |
| Valeur énergétique | 356kWh/m²/an |
| Type de chauffage | mazout (chauf. centr.) |
| Conformité électricité | oui, non conforme |
| Totale | 162 m2 |
| Terrain | 779 m2 |
| Séjour | 28 m2 |
| Cuisine | 21.55 m2 |
| Chambre 1 | 14.13 m2 |
| Chambre 2 | 13.61 m2 |
| Chambre 3 | 5.76 m2 |
| Terrasse | 70 m2 |
Gauthier LassoieAgent immobilier
Ce bien vous intéresse ? Contactez-moi pour plus d'informations. Je vous répondrai rapidement pour fixer une visite ou pour répondre à vos questions.
Visite virtuelle