-
150.64 m2
-
3 chambres
-
1 salle de bain
Description du bien
INFOS & VISITES – Adele Ramelot 0489 85 46 40 –
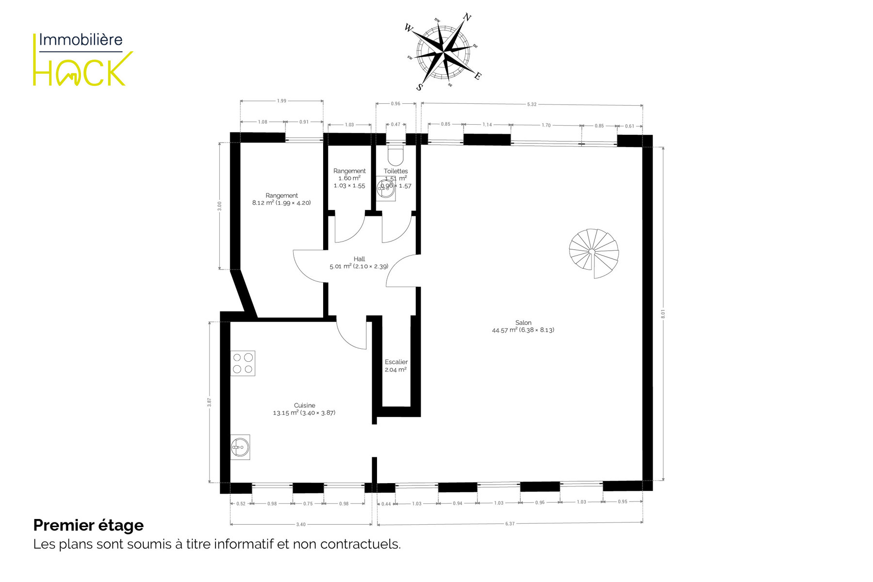
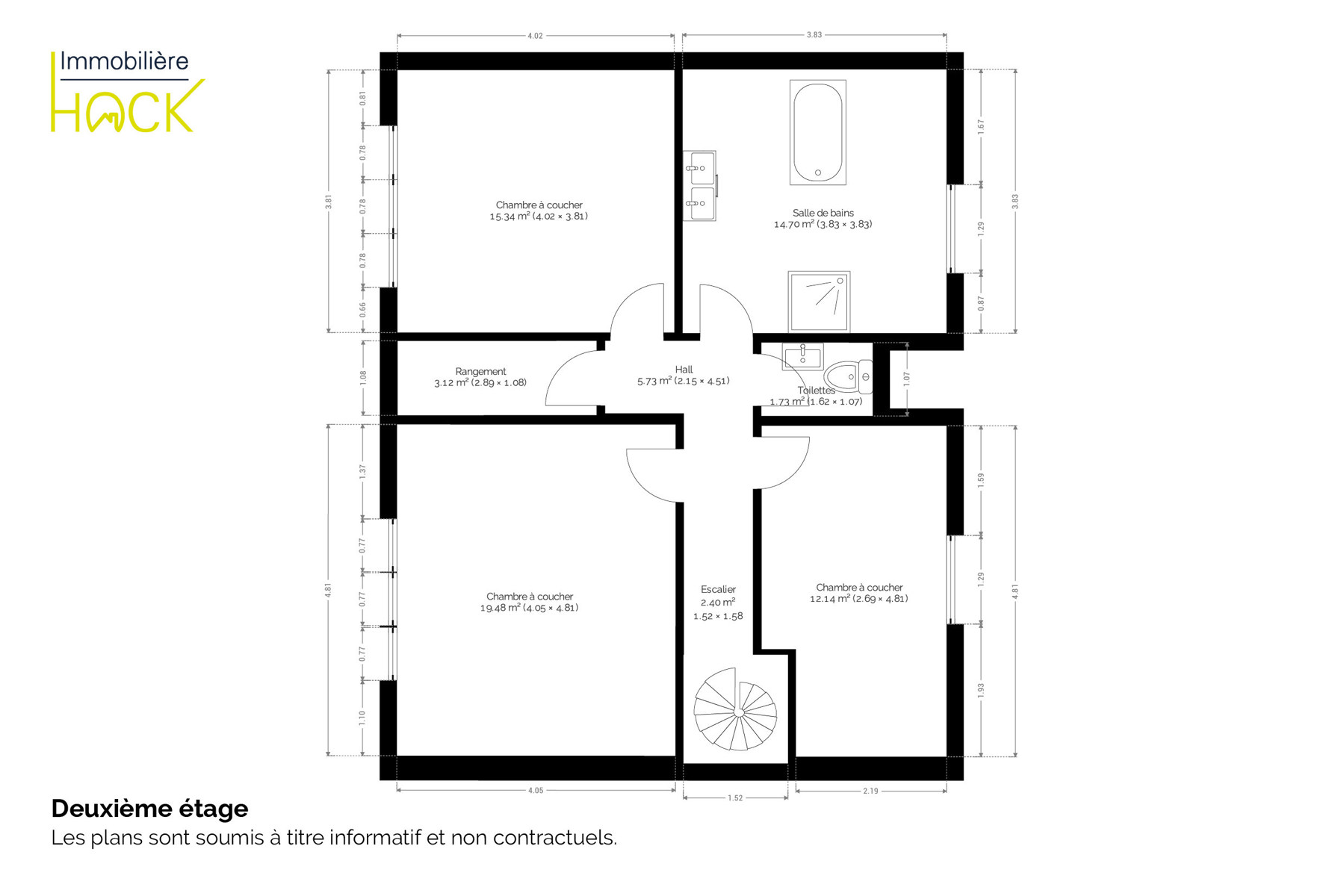
Situé en plein centre de Welkenraedt, appartement trois chambres.
Au premier étage d’une petite copropriété sans ascenseur, ce bien se compose d’un hall d’entrée avec WC, d’un lumineux séjour, d’une cuisine équipée, d'une buanderie et d'un espace de rangement. Au deuxième étage, un hall de nuit dessert trois chambres, une salle de bains (bain et douche), un espace de rangement ainsi que d' un WC. Un grenier complète l'ensemble.
DV PVC – Compteurs séparés (électricité, eau et gaz) – Volets manuels - Panneaux photovoltaïques
Loyer : 860 €/mois (hors consommations privées : électricité, eau et gaz).
PEB : B (N° 20260123022664 ; E total : 14 502 kWh/an – 87 kWh/m².an).
Situé en plein centre de Welkenraedt, appartement trois chambres.
Au premier étage d’une petite copropriété sans ascenseur, ce bien se compose d’un hall d’entrée avec WC, d’un lumineux séjour, d’une cuisine équipée, d'une buanderie et d'un espace de rangement. Au deuxième étage, un hall de nuit dessert trois chambres, une salle de bains (bain et douche), un espace de rangement ainsi que d' un WC. Un grenier complète l'ensemble.
DV PVC – Compteurs séparés (électricité, eau et gaz) – Volets manuels - Panneaux photovoltaïques
Loyer : 860 €/mois (hors consommations privées : électricité, eau et gaz).
PEB : B (N° 20260123022664 ; E total : 14 502 kWh/an – 87 kWh/m².an).
Documents téléchargeables
Emplacement du bien
| ID du bien | 7330757 |
| Titre du bien | AD - Appartement 3 chambres |
| Référence | 2026/4 |
| Catégorie | Appartement |
| Sous-catégorie | Duplex |
| Transaction | À louer |
| Status de la transaction | Loué |
| Classe énergétique | B |
| Valeur énergétique | 87kWh/m²/an |
| Type de chauffage | gaz (chau. centr.) |
| Totale | 150.64 m2 |
| Séjour | 44.57 m2 |
| Cuisine | 13.15 m2 |
| Chambre 1 | 19.48 m2 |
| Chambre 2 | 15.34 m2 |
| Chambre 3 | 12.14 m2 |
Adèle RamelotAgent immobilier
Ce bien vous intéresse ? Contactez-moi pour plus d'informations. Je vous répondrai rapidement pour fixer une visite ou pour répondre à vos questions.