Bureaux À louer - Herve

À louer

Rue Neuve, 36 - 4650 Herve

650 €

  • 90 m2

  • 1 emplacement

Description du bien

INFOS & VISITES - Alexia Lallemand 0455 14 90 47 -

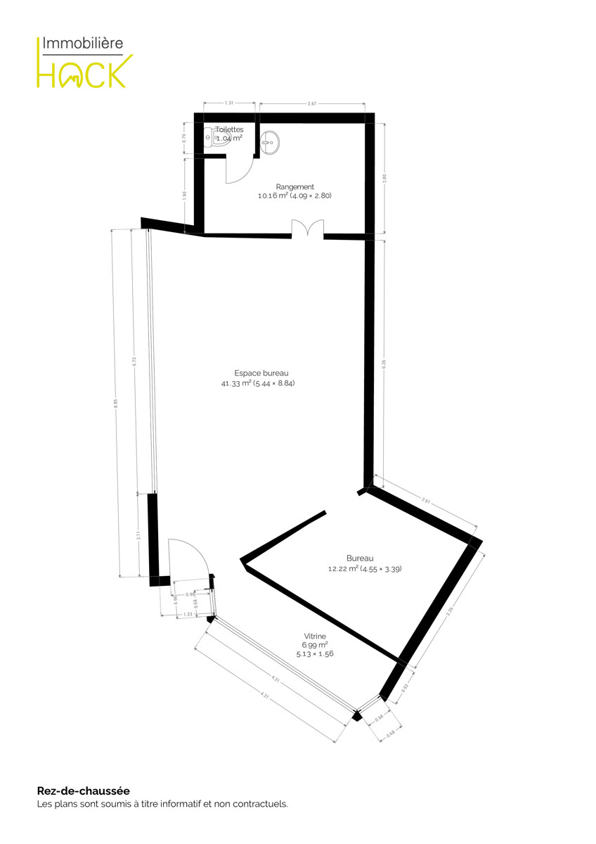
Située en plein centre de Herve, dans la Galerie La Neuve accueillant une clientèle quotidienne et régulière grâce à ses nombreux commerces, espace de bureaux avec emplacement de parking en sous-sol dispose d'une superficie totale de 90m².

Cet espace comprend un bureau de 41,33 m², une zone de bureau surélevée de 12,22 m², un espace bureau en demi sous-sol de 18,11m² ainsi qu’une pièce arrière destinée au rangement. Sa large vitrine lui offre une excellente visibilité depuis les différentes entrées de la galerie.

Parkings aisés à proximité pour la clientèle.

Compteur électrique séparé - Parkings aisés - Grande vitrine

Loyer : 650€/mois hors précompte immobilier
Provisions : 300€/mois (chauffage et eau)

Le précompte immobilier est à charge du preneur : 74€/mois

La surface est libre immédiatement.

Documents téléchargeables

Emplacement du bien

Général

ID du bien 7282508
Titre du bien A - Espace de bureaux à la Galerie la Neuve
Référence 2025/220
Catégorie Bureau
Sous-catégorie Bureaux
Transaction À louer
Status de la transaction À louer

Finance

Prix 650€
Date de construction 1979

Énergie

Type de chauffage mazout (chauf. centr.)

Surfaces

Totale 90 m2

Installations

650 €

Alexia LallemandAgent immobilier

Ce bien vous intéresse ? Contactez-moi pour plus d'informations. Je vous répondrai rapidement pour fixer une visite ou pour répondre à vos questions.