-
73.7 m2
-
1 chambre
-
1 salle de bain
Description du bien
INFOS & VISITES - Emma Petit 0455 14 23 82 -
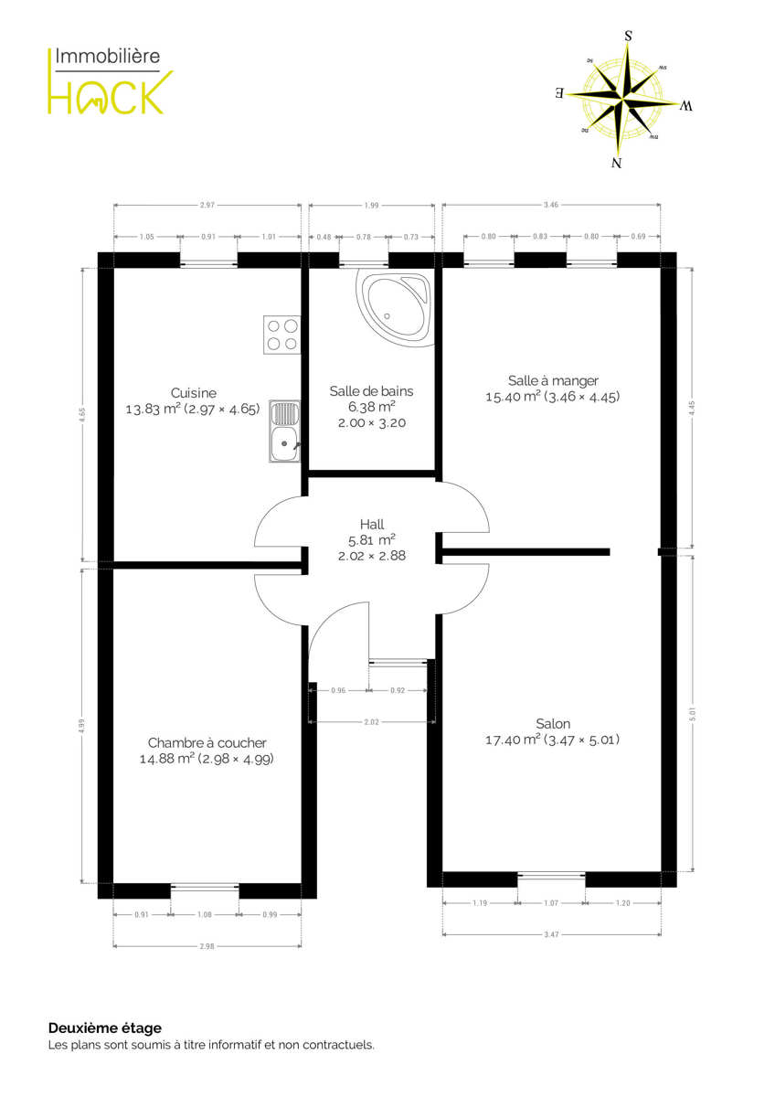
Situé sur la place de Battice, appartement une chambre avec cave.
Cet appartement situé au 2 ème étage d’une résidence sans ascenseur se compose d’un séjour, d'une salle à manger, d'une cuisine, d’une salle de bains ainsi que d'une chambre. Une cave complète l'ensemble.
DV PVC - Compteur séparé (électricité) - CC mazout (collectif) - Vidéophone
Loyer 590€/mois
Provisions : 90€/mois (eau, mazout, électricité commune)
PEB : D (N°- 339 kwH/m2.an - E total : 26 900 kwh/an)
Situé sur la place de Battice, appartement une chambre avec cave.
Cet appartement situé au 2 ème étage d’une résidence sans ascenseur se compose d’un séjour, d'une salle à manger, d'une cuisine, d’une salle de bains ainsi que d'une chambre. Une cave complète l'ensemble.
DV PVC - Compteur séparé (électricité) - CC mazout (collectif) - Vidéophone
Loyer 590€/mois
Provisions : 90€/mois (eau, mazout, électricité commune)
PEB : D (N°- 339 kwH/m2.an - E total : 26 900 kwh/an)
Documents téléchargeables
Emplacement du bien
| ID du bien | 7149333 |
| Titre du bien | E-Appartement 1 chambre avec cave |
| Référence | 2025/181 |
| Catégorie | Appartement |
| Sous-catégorie | Appartement |
| Transaction | À louer |
| Status de la transaction | Loué |
| Classe énergétique | D |
| Valeur énergétique | 339kWh/m²/an |
| Type de chauffage | mazout (chauf. centr.) |
| Totale | 73.7 m2 |
| Séjour | 17.4 m2 |
| Salle à manger | 15.4 m2 |
| Cuisine | 13.83 m2 |
| Chambre 1 | 14.88 m2 |
Emma PetitAgent immobilier
Ce bien vous intéresse ? Contactez-moi pour plus d'informations. Je vous répondrai rapidement pour fixer une visite ou pour répondre à vos questions.