-
130 m2
-
3 chambres
-
1 salle de bain
Description du bien
INFOS & VISITES - Emma Petit 0455 14 23 82 -
En plein cœur du centre de Herve à deux pas de toutes commodités, magnifique duplex trois chambres entièrement rénové avec terrasse, parking et caves.
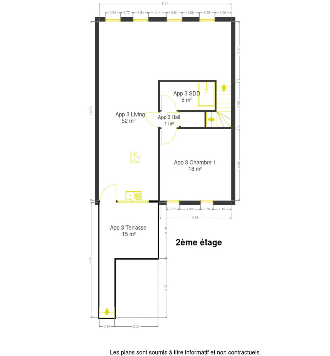
Situé au deuxième étage d'un immeuble de trois appartements sans ascenseur, ce duplex se compose d'une cuisine ouverte et équipée donnant sur un grand et lumineux séjour, ainsi que d'une chambre, d'une salle de douches, d'une buanderie et d'un WC. L'étage dessert deux grandes chambres. Une grande terrasse de 15 m² avec vue dégagée, deux caves, et un emplacement de parking dans la cour arrière complètent l'ensemble.
CC gaz (chaudière indiv.) - DV PVC - Electricité conforme - Rénovation 2024 - Vidéophone - Cuisine équipée
PEB : B E Totale : 13859 kwH/an E Spec : 114 kwH/m2.an (20250624029411)
Loyer : 950€ (hors charges (élect., eau, gaz))
Charges : 50€ (communs)
En plein cœur du centre de Herve à deux pas de toutes commodités, magnifique duplex trois chambres entièrement rénové avec terrasse, parking et caves.
Situé au deuxième étage d'un immeuble de trois appartements sans ascenseur, ce duplex se compose d'une cuisine ouverte et équipée donnant sur un grand et lumineux séjour, ainsi que d'une chambre, d'une salle de douches, d'une buanderie et d'un WC. L'étage dessert deux grandes chambres. Une grande terrasse de 15 m² avec vue dégagée, deux caves, et un emplacement de parking dans la cour arrière complètent l'ensemble.
CC gaz (chaudière indiv.) - DV PVC - Electricité conforme - Rénovation 2024 - Vidéophone - Cuisine équipée
PEB : B E Totale : 13859 kwH/an E Spec : 114 kwH/m2.an (20250624029411)
Loyer : 950€ (hors charges (élect., eau, gaz))
Charges : 50€ (communs)
Documents téléchargeables
Emplacement du bien
| ID du bien | 6837326 |
| Titre du bien | E- Appartement duplex 3 chambres avec terrasse et caves |
| Référence | 2025/111 |
| Catégorie | Appartement |
| Sous-catégorie | Duplex |
| Transaction | À louer |
| Status de la transaction | Loué |
| Disponibilité | Neuf |
| Date de rénovation | 2024 |
| État du bâtiment | Neuf |
| Classe énergétique | B |
| Valeur énergétique | 114kWh/m²/an |
| Type de chauffage | gaz (chau. centr.) |
| Conformité électricité | oui, conforme |
| Totale | 130 m2 |
| Séjour | 52 m2 |
| Chambre 1 | 18 m2 |
| Chambre 2 | 23 m2 |
| Chambre 3 | 24 m2 |
| Terrasse | 15 m2 |
Emma PetitAgent immobilier
Ce bien vous intéresse ? Contactez-moi pour plus d'informations. Je vous répondrai rapidement pour fixer une visite ou pour répondre à vos questions.
Visite virtuelle