-
222 m2
-
1 chambre
Description du bien
INFOS & VISITES - Yves Perugini 0455 14 90 52
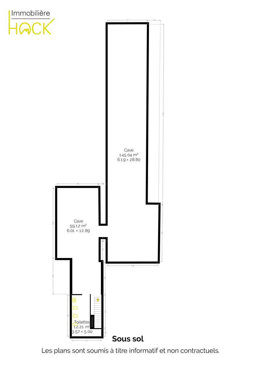
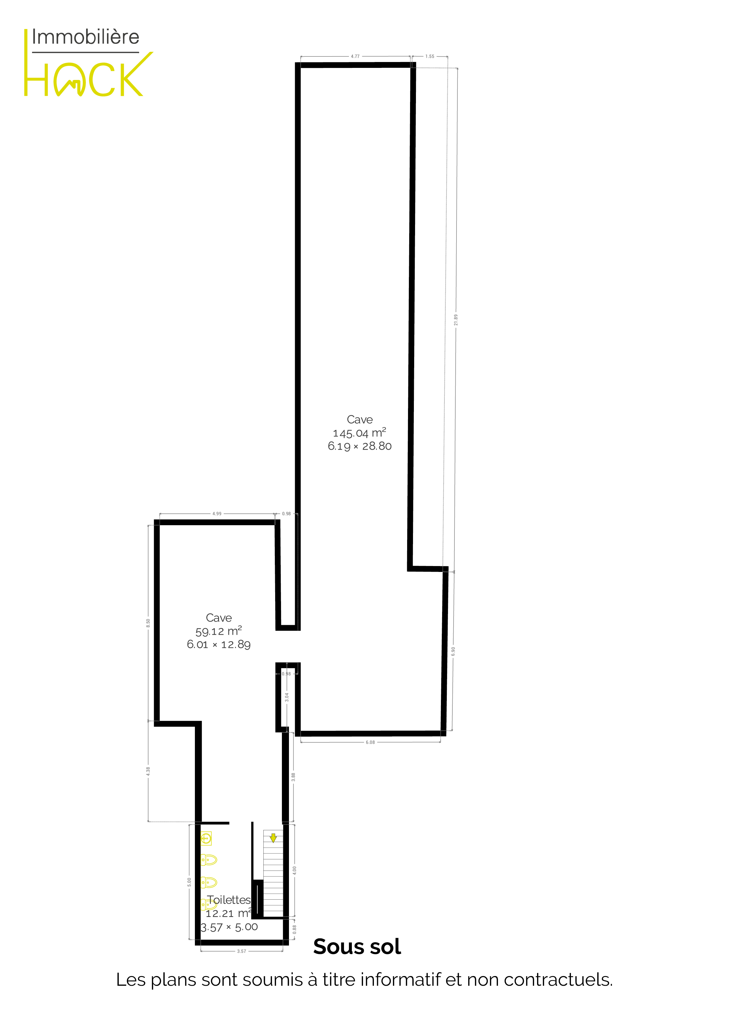
Située au sein d’un bâtiment classé au patrimoine, en plein cœur du centre historique de Liège, espace unique et spacieux de caves voutées, avec accès indépendant.
Avec ses volumes généreux et sa structure voûtée, cette cave offre une ambiance à la fois historique et impressionnante, idéale pour des projets d’aménagement ambitieux. L'espace se compose d'un coin toilettes, d'un bar, ainsi que d'une grande salle qui peut être aménagée de multiples façons, que ce soit pour un espace de réception, un lieu d'exposition, une cave à vin, stockage ou même un projet professionnel tel qu'un studio ou une salle polyvalente (sous réserve des autorisations adéquates). L'accès indépendant à cet espace permet de l'utiliser de manière autonome, tout en préservant l'intimité des autres parties du bâtiment. Avec ses nombreuses possibilités d'aménagement, cet espace est une occasion rare de créer un lieu unique, alliant histoire, fonctionnalité et créativité. Situé dans l'un des quartiers les plus recherchés de Liège, il offre également l'avantage d'être à deux pas de toutes les commodités et de l'animation du centre-ville.
Compteurs séparés - Bâtiment classé au patrimoine - Copropriété sans syndic 3 logements, 3 emplacements de parking et une cave - Charges communes réduites
Possibilité d'achat d'un triplex à rénover en supplément.
Compteur Gaz - Compteur électrique - Electricité non conforme - Charges communes réduites
RC : 100 €
Située au sein d’un bâtiment classé au patrimoine, en plein cœur du centre historique de Liège, espace unique et spacieux de caves voutées, avec accès indépendant.
Avec ses volumes généreux et sa structure voûtée, cette cave offre une ambiance à la fois historique et impressionnante, idéale pour des projets d’aménagement ambitieux. L'espace se compose d'un coin toilettes, d'un bar, ainsi que d'une grande salle qui peut être aménagée de multiples façons, que ce soit pour un espace de réception, un lieu d'exposition, une cave à vin, stockage ou même un projet professionnel tel qu'un studio ou une salle polyvalente (sous réserve des autorisations adéquates). L'accès indépendant à cet espace permet de l'utiliser de manière autonome, tout en préservant l'intimité des autres parties du bâtiment. Avec ses nombreuses possibilités d'aménagement, cet espace est une occasion rare de créer un lieu unique, alliant histoire, fonctionnalité et créativité. Situé dans l'un des quartiers les plus recherchés de Liège, il offre également l'avantage d'être à deux pas de toutes les commodités et de l'animation du centre-ville.
Compteurs séparés - Bâtiment classé au patrimoine - Copropriété sans syndic 3 logements, 3 emplacements de parking et une cave - Charges communes réduites
Possibilité d'achat d'un triplex à rénover en supplément.
Compteur Gaz - Compteur électrique - Electricité non conforme - Charges communes réduites
RC : 100 €
Documents téléchargeables
Emplacement du bien
| ID du bien | 6332262 |
| Titre du bien | Y - Caves voutées avec accès indépendant |
| Référence | 2024/131 |
| Catégorie | Maison |
| Sous-catégorie | Autre |
| Transaction | À vendre |
| Status de la transaction | À vendre |
| Prix | 180000€ |
| Cadastre | 100 € |
| Orientation du bâtiment | nord |
| Conformité électricité | non |
| Totale | 222 m2 |
| Terrain | 215 m2 |
180.000 €
Yves PeruginiAgent immobilier
Ce bien vous intéresse ? Contactez-moi pour plus d'informations. Je vous répondrai rapidement pour fixer une visite ou pour répondre à vos questions.
Visite virtuelle