-
70.49 m2
-
1 chambre
Description du bien
INFOS & VISITES - Yves Perugini 0455 14 90 52 -
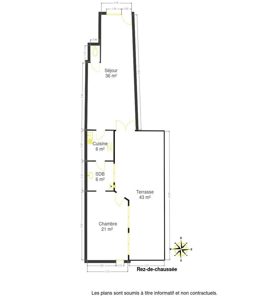
Situé dans un quartier calme, appartement une chambre avec cour au rez-de-chaussée d'un immeuble de deux appartements.
L'appartement se compose d'un vaste séjour avec accès direct à une cour, d'un WC indépendant, d'une cuisine équipée et d'une chambre. Une salle de bains est à prévoir.
CC gaz – - DV PVC - Electricité non conforme
RC : 118 € (Poss. Frais réduits)
PEB D (n° 20240703026255- 318 kwH/m2.an- E total : 25088 kwh/an)
Situé dans un quartier calme, appartement une chambre avec cour au rez-de-chaussée d'un immeuble de deux appartements.
L'appartement se compose d'un vaste séjour avec accès direct à une cour, d'un WC indépendant, d'une cuisine équipée et d'une chambre. Une salle de bains est à prévoir.
CC gaz – - DV PVC - Electricité non conforme
RC : 118 € (Poss. Frais réduits)
PEB D (n° 20240703026255- 318 kwH/m2.an- E total : 25088 kwh/an)
Documents téléchargeables
Emplacement du bien
| ID du bien | 6233682 |
| Titre du bien | Y- Bellaire - Appartement 1 ch avec cour |
| Référence | 2024/56 |
| Catégorie | Appartement |
| Sous-catégorie | Appartement |
| Transaction | À vendre |
| Status de la transaction | Vendu |
| Cadastre | 286 € |
| Classe énergétique | D |
| Valeur énergétique | 318kWh/m²/an |
| Type de chauffage | gaz |
| Conformité électricité | oui, non conforme |
| Totale | 70.49 m2 |
| Terrain | 230 m2 |
| Séjour | 36.29 m2 |
| Cuisine | 6.01 m2 |
| Chambre 1 | 21.19 m2 |
| Terrasse | 42.63 m2 |
Yves PeruginiAgent immobilier
Ce bien vous intéresse ? Contactez-moi pour plus d'informations. Je vous répondrai rapidement pour fixer une visite ou pour répondre à vos questions.
Visite virtuelle