-
93.92 m2
Description du bien
INFOS & VISITES - Emma Petit 0455 14 23 82 -
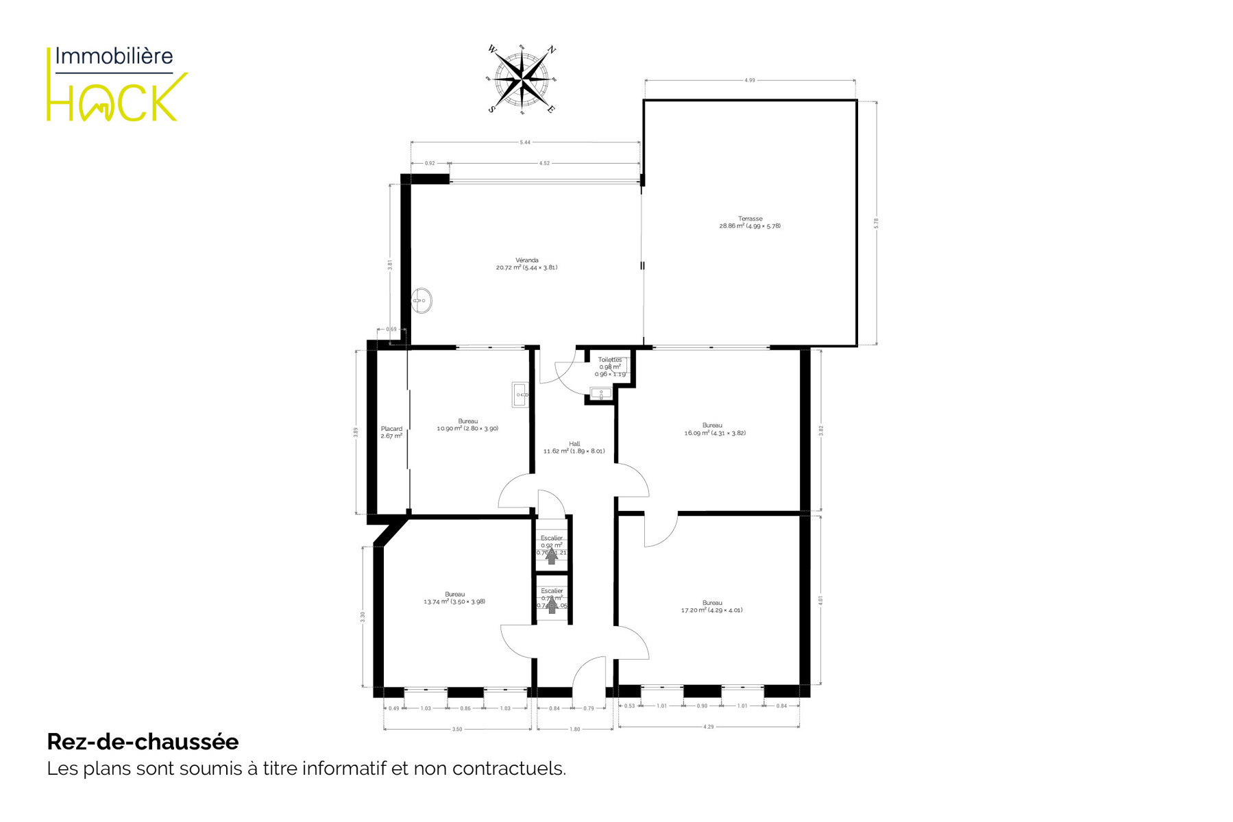
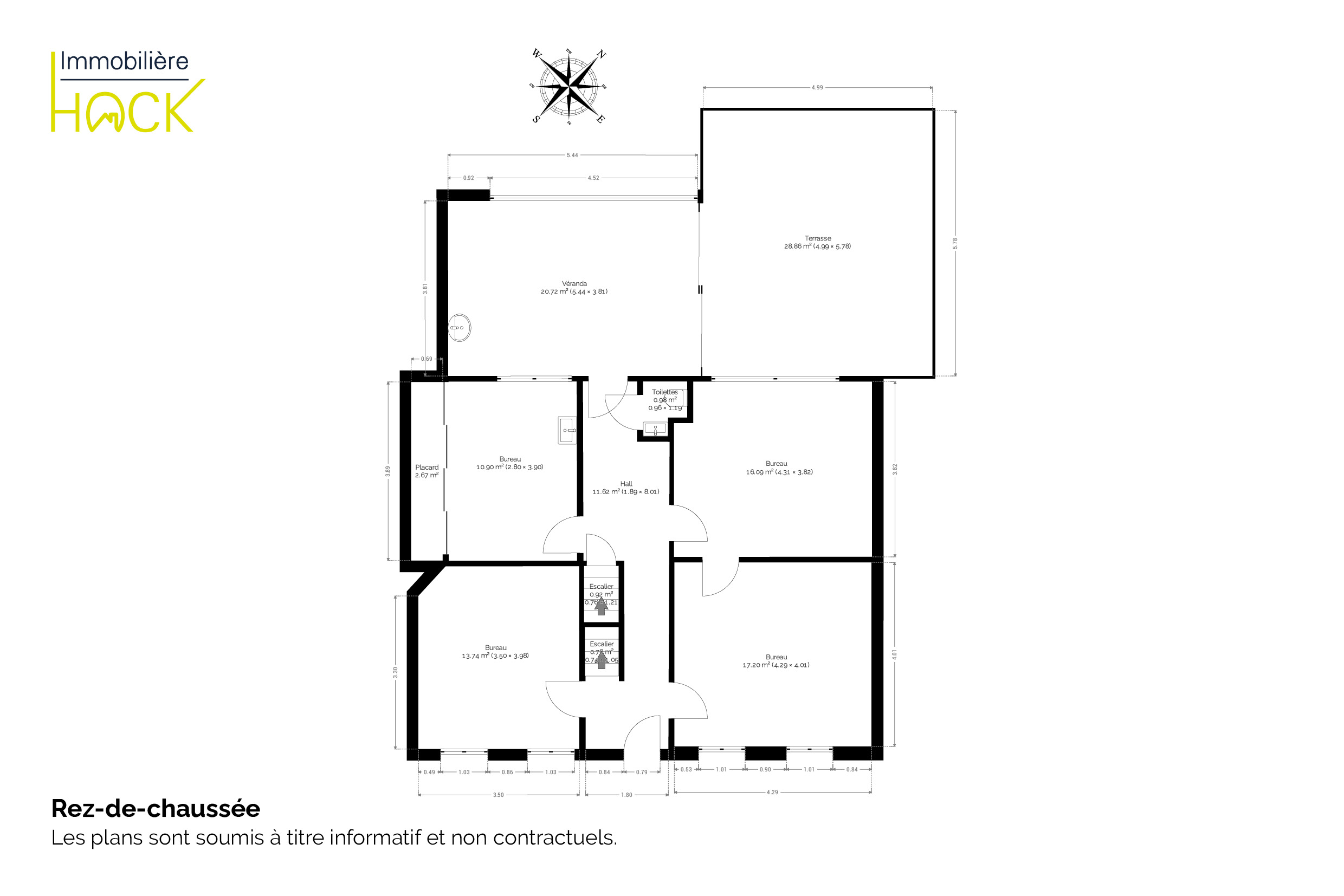
Situé en plein centre de Welkenraedt, bureau de 93,92m2 avec cave, local poubelles, terrasse et jardin.
Cette surface se compose d'un hall d'entrée avec WC, de quatre bureaux, et d'une spacieuse et lumineuse véranda. Une cave, un local poubelles, une terrasse et un jardin complètent l'ensemble.
DV PVC/bois - Pompe à chaleur (air/air) - Compteurs séparés (eau, élect.) - Panneaux photovoltaïques
Loyer : 990€/mois
Provisions : 50€/mois (précompte immobilier)
Situé en plein centre de Welkenraedt, bureau de 93,92m2 avec cave, local poubelles, terrasse et jardin.
Cette surface se compose d'un hall d'entrée avec WC, de quatre bureaux, et d'une spacieuse et lumineuse véranda. Une cave, un local poubelles, une terrasse et un jardin complètent l'ensemble.
DV PVC/bois - Pompe à chaleur (air/air) - Compteurs séparés (eau, élect.) - Panneaux photovoltaïques
Loyer : 990€/mois
Provisions : 50€/mois (précompte immobilier)
Documents téléchargeables
Emplacement du bien
| ID du bien | 7330762 |
| Titre du bien | E - Bureau |
| Référence | 2026/05 |
| Catégorie | Bureau |
| Sous-catégorie | Usage multiple |
| Transaction | À louer |
| Status de la transaction | À louer |
| Prix | 990€ |
| Orientation du bâtiment | nord-ouest |
| Type de chauffage | pompe à chaleur |
| Totale | 93.92 m2 |
| Terrasse | 28.06 m2 |
990 €
Emma PetitAgent immobilier
Ce bien vous intéresse ? Contactez-moi pour plus d'informations. Je vous répondrai rapidement pour fixer une visite ou pour répondre à vos questions.
Biens similairesDécouvrez d'autres bien en location
-
Nouveau-
4
-
2
-
171 m2
-
1
StoumontDuplex
990 €
-
-
Nouveau-
3
-
1
-
80 m2
-
1
BaelenAppartement
790 €
-
-
Nouveau-
2
-
1
-
93 m2
-
1
StoumontAppartement
870 €
-
-
Nouveau-
120 m2
-
1
Liège RocourtBureaux
990 €
-
-
À louer-
2
-
2
-
136 m2
-
1
WelkenraedtMaison
870 €
-
-
À louer-
14 m2
-
1
LiègeBureaux
450 €
-
-
À louer-
23 m2
-
1
Liège RocourtBureaux
450 €
-
-
À louer-
14 m2
-
1
Liège RocourtBureaux
300 €
-
-
À louer-
73 m2
WelkenraedtCommerce individuel
800 €
-
-
À louer-
73 m2
WelkenraedtBureaux
800 €
-
-
À louer-
163 m2
-
1
Liège RocourtRez commercial
1.500 €
-
-
À louer-
393 m2
-
1
HerveCommerce individuel
2.500 €
-
-
À louer-
1
-
1
-
34 m2
LiègeStudio
680 €
-
-
À louer-
4
-
1
-
261 m2
Plombières MontzenMaison
1.100 €
-
-
À louer-
61 m2
-
1
WelkenraedtRez commercial
1.400 €
-
-
À louer-
109 m2
-
1
HerveRez commercial
3.000 €
-
-
À louer-
44 m2
-
1
HerveCommerce individuel
1.500 €
-
-
À louer-
65 m2
-
1
HerveCommerce individuel
1.500 €
-
-
À louer-
5
-
1
-
560 m2
-
1
Welkenraedt Henri-ChapelleMaison
1.800 €
-
-
À louer-
139 m2
-
1
FléronRez commercial
2.200 €
-
-
À louer-
19 m2
-
1
Retinne Bureaux
150 €
-
-
À louer-
3
-
1
-
150 m2
-
1
PlombièresAppartement
850 €
-
-
À louer-
608 m2
LiègeParking intérieur
1.500 €
-
-
À louer-
134 m2
-
1
WelkenraedtCommerce individuel
1.200 €
-
-
À louer-
170 m2
-
1
WelkenraedtCommerce individuel
1.450 €
-
-
À louer-
127 m2
-
1
HerveRez commercial
À partir de750 €
-